
Premium Apart MONday 浜松町ステーション エントランス (イメージ)
株式会社JHAT(本社:東京都、代表取締役:平林 朗)は、東京都港区・浜松町に「Premium Apart MONday 浜松町ステーション」(全27室)を2026年3月27日(金)に開業いたします。
本施設は、MONdayグループが展開する“暮らすように泊まる”滞在スタイルをさらに進化させたプレミアムラインとして、都心でありながら、ゆとりと静けさを感じられる滞在体験を提供します。ビジネスにも観光にも利便性の高い浜松町エリアを舞台に、短期から中長期まであらゆる滞在ニーズに応える新しい拠点が誕生します。大手企業のオフィスビルが建ち並ぶビジネス街でありながら、徒歩圏内には東京タワー、徳川将軍家の菩提寺・増上寺、四季折々の美しさを楽しめる芝公園など、歴史と文化が息づく観光名所が点在。ビジネスと観光が調和した、東京の中でも特別な魅力を持つエリアです。
◆デザインコンセプト
■Premium Apart MONday 浜松町ステーションは、「Urban Calm ─ 都市の中の静寂」をコンセプトに、日本の伝統素材が持つ質感と現代的な都市感覚を融合させたモダン和×シティライクな空間を実現しました。派手な装飾に頼らず、素材・色・陰影によって日本の美意識を表現し、世界から集まる旅人が「日本に触れる」ための拠点となる、新たな滞在体験をお届けします。
■全室35平方メートル 以上のゆとり。選べる3種類の客室|“和”の寛ぎ × ゆとりある面積
和の落ち着きを感じる空間設計と、グループ滞在にも嬉しい広さで、短期~中長期の滞在まで柔軟に
対応します。
・デラックスジャパニーズ(42.61平方メートル )

デラックスジャパニーズ イメージ

デラックスジャパニーズ イメージ

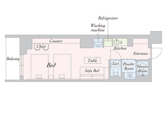
間取り図 イメージ
・スーペリアファミリー(37.85平方メートル )

スーペリアファミリー イメージ

間取り図 イメージ
・スーペリアジャパニーズ(35.25平方メートル )

スーペリアジャパニーズ イメージ

間取り図 イメージ
公式HP・ご予約はこちらから
公式HPからの新規会員登録/ログインのご予約がお得!1.10%OFF2.14時チェックイン
施設概要

■ 「hotel MONday」、「MONday Apart」は一体どんなホテル?
「hotel MONday Group」は東京24施設(豊洲、西葛西、日本橋や浜松町といった東京屈指のビジネスエリア、秋葉原や上野御徒町といった下町文化の残るエリア)、京都5施設(京都駅、烏丸二条、丸太町など京都駅や観光地などアクセスに便利なエリア)、大阪1施設(大阪難波という歴史、文化、美食とエンターテインメントが融合する日本第二の都市と言われるエリア)です。
ゲストが“暮らす”ように過ごせる「アパルトホテル」を目指したMONday Apartシリーズは、観光やビジネスに適した立地もさることながら、ホテル内の施設も充実。
シンプルかつ機能的でありながら日本の美意識を生かした客室や、自炊可能なキッチンや自動洗濯乾燥機をはじめとした長期滞在者向けの設備など、お客様の快適な滞在を叶えるためのサービスを取り揃えています。
Trip advisor アワード受賞世界49の国と地域、28言語でサービスを展開する旅行口コミサイト「トリップアドバイザー」にはゲストの口コミ点数を基にした『ランキング』がございます。株式会社JHATの運営する hotel MONday Groupでは、世界の上位1%の施設にのみ授与される「ベスト・オブ・ザ・ベスト」を受賞している施設もあり、宿泊者から高い評価を得ています。

株式会社 JHAT【 本プレスリリースに関するお問合せ先 】
株式会社JHAT 担当:風岡
TEL:03-6453-0144
FAX:03-6453-0954
メール:promotion_gp@jhat-m.com
企業プレスリリース詳細へ
PRTIMESトップへ

